Ricerca

Appartamento in Vendita a Carbonera

Zona: Pezzan

167 mq 2 Bagni 3 Camere 6 Locali
Codice: 1870 € 360.000

Carbonera ATTICO DI NUOVA COSTRUZIONE
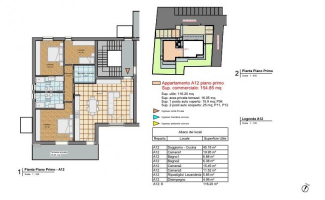
In comune di Carbonera attico tricamere in nuova costruzione realizzato in classe energetica “A 4”. Questo prestigioso Appartamento offre una zona giorno di oltre 50 mq! che si affaccia sulle due terrazze (la principale di oltre 40 mq.!). La zona notte è stata pensata con 3 camere, una cabina armadio, doppi servizi ed angolo lavanderia. L’abitazione è dotata di un garage e 2 posti auto esterni.Tecnicamente l’Appartamento verrà realizzato impiegando la più moderna tecnologia con rifiniture di qualità ed in stile contemporaneo. Sotto il profilo del comfort abitativo e dell’isolamento verrà utilizzato per le pareti il sistema certificato “sismiblock” che offre un pacchetto isolante 6+12 cm tra interno ed esterno muratura. La stessa cura viene impiegata sin dalla base dell’edificio andando ad isolare e ventilare il vespaio.
I serramenti sono in pvc con sistema anta e ribalta, vetrocamera a basso emissivo e predisposti alle zanzariere integrate e tende oscuranti ad incasso esterne motorizzate. I pavimenti sono previsti in gres porcellanato di grande formato (60x60 cm) per la zona giorno ed in tavole di rovere spazzolato per la zona notte. Il riscaldamento è di tipo autonomo a pavimento in pompa di calore coadiuvato da un impianto fotovoltaico di 6 Kw . L’impianto di raffrescamento è di tipo canalizzato rendendo gestibile ogni locale in modo indipendente e regolabile anche da remoto.
SUPERFICI:
Appartamento 135,05 mq x100%= 135,05 mq
Terrazzi 50,20 mq x 33%= 16,73 mq
Garage (N.4) 20,35 mq x 60%=12,21 mq
Posti auto 25,00 mq x 15%= 3,75 mq
Totale superficie commerciale 167,74 mq
RIF. IMMOBILE N. 1870

Informazioni immobile
Codice: 1870
Contratto: Vendita
Tipologia: Appartamento
Regione: Veneto
Provincia: Treviso
Comune: Carbonera
Zona: Pezzan
Prezzo: € 360.000
Totale mq: 167 mq
Camere: 3
Bagni: 2
Locali: 6
Stato conservazione: Ottimo
Piano: 1
Piani totali: 2
Posto auto: Scoperto
Infissi: in pvc
Appartamenti Totali: 4
Età costruzione: 2026
Terrazzo: Presente, 50 mq
Box: Singolo, 20 mq
Posizione: Zona residenziale
Caratteristiche
Terrazza: 50 m²
Antenna Tv: Condominiale
Tv SAT: Condominiale
Copertura ADSL
Copertura Fastweb
Aria Condizionata
Parquet
Impianto Telefonico
Impianto Elettrico: A norma
Sanitari sospesi
Doccia
Predisposizione allarme
Nelle vicinanze
Campi da Calcio
Parchi Giochi
Trasporti Pubblici
Asilo
Scuole Elementari
Scuole Medie
Bar
Mappa immobile

Ultimo aggiornamento 08-01-2026